Zwolle – Democratenlaan 90

Prijs
€ 1.500,- p/m.
Status
Beschikbaar
Kantoorruimte oppervlakte
75

TE HUUR
Deze te huur staande ruimte is gelegen aan de Democratenlaan 90 en ligt vlakbij het winkelcentrum Zwolle-Zuid en in de nabijheid van maatschappelijk en zorg gerelateerde partijen zoals: het Consultatiebureau-GGD, Buurtzorg locatie Zwolle-Zuid en Logopediepraktijk Zwolle-Zuid.

De ruimte heeft een maatschappelijke bestemming en is daardoor de ideale plek voor bijvoorbeeld een fysiotherapeut, tandarts, mondhygiëniste, psychologiepraktijk of kantoorgebruik voor maatschappelijk georiënteerde organisaties.

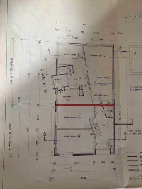
Indeling: entree, toilet, wachtkamer, balie en een drietal spreekkamers.

In overleg is de eigenaar bereid om te onderzoeken of de oppervlakte uitgebreid kan worden door realisatie van een extra verdieping en/of een uitbouw aan de zijkant van het gebouw waardoor een zorgcentrum voor meerdere zorgpartijen ontstaat.

OPPERVLAKTE
Begane grond: ca 75 m².

OPLEVERINGSNIVEAU
Het object beschikt onder andere over de navolgende voorzieningen:
– centrale verwarmingsinstallatie met radiatoren;
– airconditioning (deels);
– toilet;
– bestaande pantry;
– bestaande vloerafwerking;
– bestaande kamer indeling;
– systeemplafond met armaturen.

PARKEERGELEGENHEID
Volop gratis parkeergelegenheid in de buurt.

HUURPRIJS
€ 1.500,- per maand.

SERVICEKOSTEN
Geen servicekosten van toepassing. Het gehuurde beschikt over eigen meters voor gas, water en elektra die op datum sleuteloverdracht op naam van huurder worden gezet.

HUURBETALING
Per maand, vooruit te betalen.

HUURTERMIJN
5 jaar en daarna telkenmale met 5 jaar te verlengen.

OMZETBELASTING
Geen BTW van toepassing, wel 5% BTW-compensatie over de huurprijs.

AANVAARDING
In overleg, doch pas vanaf 1 maart 2025.

HUURPRIJSAANPASSING
De huurprijs zal jaarlijks worden aangepast overeenkomstig de maandprijsindexering volgens de CBS-cijfers ‘’alle huishoudens’’, voor het eerst 1 jaar na huuringangsdatum.

ZEKERHEIDSSTELLING
Bankgarantie/waarborgsom ter grootte van een bruto betalingsverplichting van drie maanden huur inclusief BTW-compensatie.

HUUROVEREENKOMST
De te sluiten huurovereenkomst zal worden opgemaakt conform het model door de Raad voor Onroerende Zaken (ROZ) 2025.